Skip to main content
Cercetare
Descoperiri
Informaţii despre
Cod RAN
63063.06
Localizare
judeţ
Constanţa
,
România
Categorie
locuire
Tip
așezare
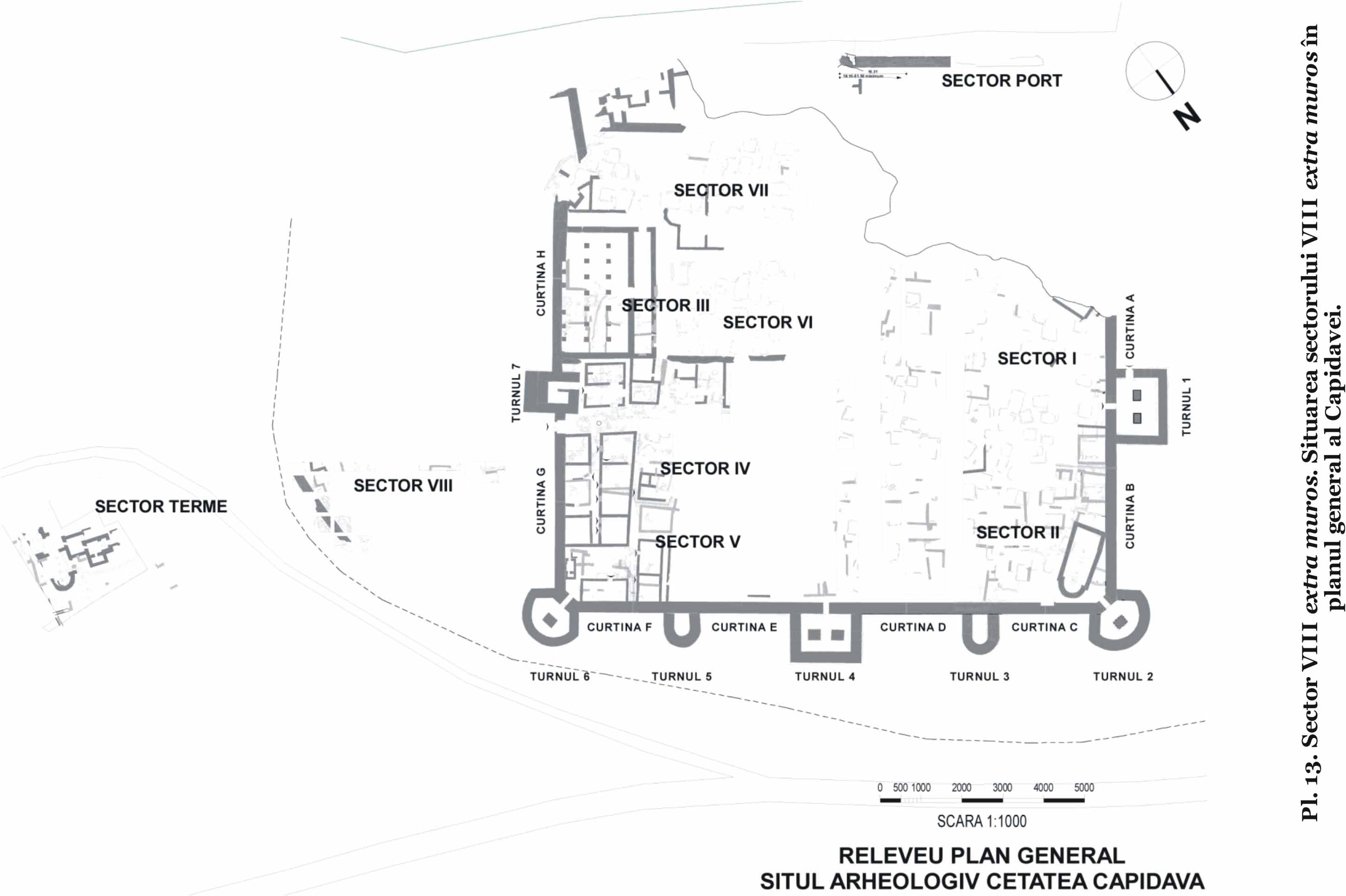
Reper
între latura de SE a curtinei G şi sectorul X - terme.
Punct
Sectorul VIII extra muros
Please wait...